

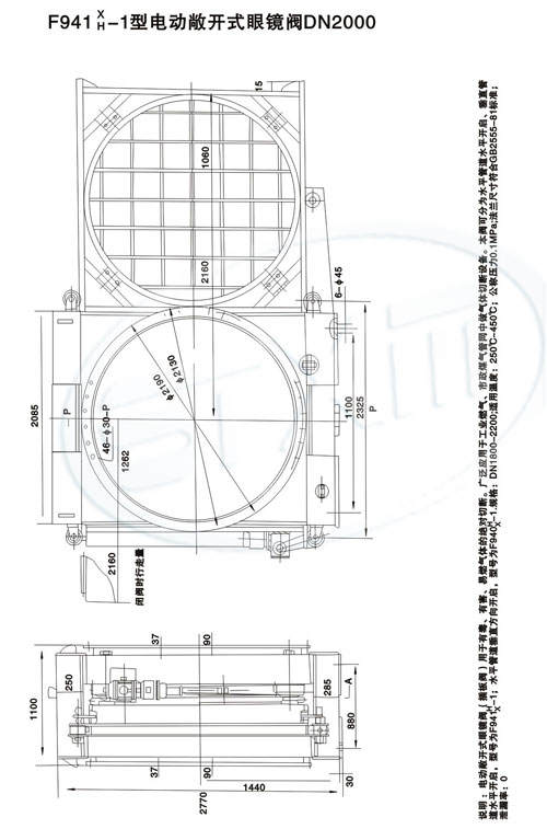
结构特点:
电动式扇形盲板阀的基本结构与液动式扇形盲板阀相同,将阀门安装液压缸的部位改装特种防爆型电动推杆。电动式扇形盲板阀结构简单,使用维护方便,可以超远距离控制。本阀备有电器操作纵台。本阀可用于无气动、液动驱动源而又需远距离自动控制的场合。安装时请参照图示确定安装方向。
主要结构尺寸:
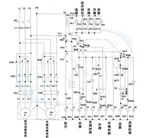
一、电动扇形盲板阀控制箱电器原理图:
二、说明:
DTK-2型电动推杆控制箱是F9T43-0.5型电动式扇形盲板阀的专用控制箱。它具有手动和自动两种可能。手动操作通过按钮SB2、SB5、SB6、SB7分别控制阀体松开、阀板翻转、阀体夹紧等动作。自动操作时按下按钮SB2待阀门夹紧部松开到位后再按开、关选择按钮SB3或SB4即可完成全部动作。手动和自动的转换通过转换开关SA来完成。另有紧急停机按钮SB1。电源通断和各步动作到位情况由行程开关和时间继电器按整定时间控制并由指示灯显示。操作原件、显示元件集中在控制箱门板上,电器控制元件安装在箱内。行程开关XK安装在阀门上。
电器元件表:
